浮子液面调节器(油田专用分离器)耐高温的有效改造
浮子液面调节器是我厂与油田规划设计研究院联手开发研制的油田专用油、气、污水分离器。该产品是油气分离器或油气分离缓冲罐上必不可少的液面控制机构。其工作原理:利用液体对浮子的浮力,通过连杆机构的作用,使阀芯随设备内液面的升、降而启、闭,从而控制设备的排液量,将设备内的液位控制在一定范围内,避免设备发生抽空或冒顶事故,确保设备安全运行。
前阶段,根据需方现场和本厂售服人员双方反馈:浮子液面调节器法兰盖(仁孔盲板)与上阀盖2个转轴部位在 >130℃的介质工矿且长时间运行中,容易漏油。尤其在大西北某井区(工况约为2.5Mpa,130~230℃)。对此,我厂技术部经研讨会下决心进行技术改造,经与工业大学某科研实体单位共同攻关,重点解决了产品高温运行的泄漏问题。
1.取消转轴轴肩原有的1组密封装置,原因是转轴往复转动很容易使其磨损,使用寿命过短。把转轴密封槽原来的2组密封圈取消,换成2组泥浆式动密封(耐温250℃)。
                                          
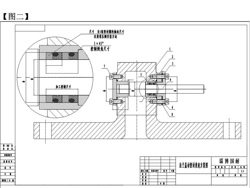
2.由于转轴动密封槽处的2组密封圈取消,替换为2组泥浆式动密封,所以转轴上密封槽也对应取消,减少了加工工序,并增加了零件:密封套、密封压盖、石棉垫。法兰盖(仁孔盲板)及上阀盖的转轴动密封部分都用2组泥浆式动密封。详见图二、图三
                

3.注意事项: A.两件转轴密封直径处长度严格保证粗糙度;B. 部分倒角尺寸严格控制;C.注意组合密封背压侧的安装方向。
4.应用情况:将加工装配、测试好的第一台套技改后的浮子液面调节器投入到某井区(工况:2.5MPa,220℃)使用 ,截止至2017年底 ,已累计运行9300h,超出了8000h的设计运行寿命 。之后,又批量投放该井区及类似的耐高温需方现场:计48台套,使用寿命均超过了9500h,目前,经需方反馈:运行良好。这表明,浮子液面调节器高温运行的泄漏问题得到了有效改造,此次技术改造是成功的。为设备的安全 、稳定 、长周期运行提供了有力的保障。有关更多资讯请关注淄博国耐 Http://www.sdguonai
					推荐
					
				
				- 
				    	  
- 
				    	  QQ空间 
- 
				    	  新浪微博 
- 
				    	  人人网 
- 
				    	  豆瓣 

 
					    	